Una casa diseñada mayormente para la ciudad donde cada vez se cuenta con lotes de terreno pequeños, sin embargo por la manera de distribución de sus ambientes se deja apreciar considerablemente amplia.
Para las fachada se empleo un estilo moderno y minimalista optando por geometrías planas y rectas tanto en la frontal como en la fachada posterior las que están conformadas por estructuras de ladrillo y concreto armado en ciertas partes, acabados con revestimientos en panel de piedra natural, concreto visto y tablones de madera enmarcados por volúmenes de color blanco mate,
para la iluminación y ventilación de cada área interior se utilizaron un conjunto de ventanas, cristales y tuertas ventanas corredizas con un ancho y altura mayor a dos metros las cuales también cumplen una función estética.
Lo que no puede faltar en nuestros proyectos son los muros fachada los cuales dan no solamente mas privacidad hacia el interior sino también otorgan cierta seguridad.
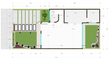
PRIMER NIVEL: Sala, comedor, cocina, cuarto de lavandería, un baño social completo, jardín frontal y posterior.
SEGUNDO NIVEL: Un dormitorio principal con vestidor y baño completo incluido y un dormitorio secundario también con baño completo incluido, para la iluminación y ventilación de los servicios sanitarios del segundo y primer piso se prevé de un tragaluz.
TERCER NIVEL: Sala de entretenimiento, dos dormitorios, un baño completo el mismo que se usará para todo el tercer piso.
MEDIDAS: 7x10 (área construida) -- 7x15 (perímetro total)
Desliza y lee descripción de cada ambiente también puedes descargar los planos arquitectónicos de referencia, imágenes de la fachada frontal y parte posterior de la casa también vistas de la distribución en 3D en formato JPG
PRIMER PISO








Interesante
ResponderEliminarMe Gusta Mucho. Excelentes Trabajos. Como obtendría planos, tubería y todo?
ResponderEliminar